Xây nhà cấp 4 trọn gói: 50+ mẫu đẹp & cách tối ưu chi phí
Cập nhật ngày: 13/10/2025 bởi Nguyễn Duy Tuấn
Nhà cấp 4, với kiến trúc gần gũi, không gian ấm cúng và chi phí hợp lý, đang trở lại mạnh mẽ như một xu hướng sống được nhiều gia đình Việt yêu thích. Không còn là những ngôi nhà đơn sơ, ngày nay, nhà cấp 4 được biến tấu với vô vàn phong cách đa dạng, từ hiện đại, tinh tế đến tân cổ điển, sang trọng, đáp ứng mọi nhu cầu về thẩm mỹ và công năng.
Tuy nhiên, hành trình để sở hữu một ngôi nhà cấp 4 hoàn hảo không hề đơn giản. Việc lên kế hoạch chi phí, lựa chọn mẫu mã, vật liệu và tìm kiếm một đơn vị thi công uy tín có thể khiến nhiều gia chủ, đặc biệt là các cặp vợ chồng trẻ, cảm thấy bối rối.
Thấu hiểu điều đó, Xây Dựng Kim Anh đã biên soạn cẩm nang toàn diện này. Chúng tôi sẽ cùng bạn khám phá những mẫu nhà đẹp nhất, phân tích chi tiết về chi phí và chia sẻ những kinh nghiệm "vàng" để bạn có thể tự tin đưa ra quyết định xây nhà cấp 4 trọn gói một cách thông minh và hiệu quả nhất trong năm 2026.
Phụ lục bài viết
Vì sao nhà cấp 4 vẫn là xu hướng được yêu thích?

Không phải ngẫu nhiên mà giữa vô vàn các lựa chọn kiến trúc, nhà cấp 4 vẫn giữ vững vị thế của mình, đặc biệt tại các khu vực ngoại ô và nông thôn.
-
Chi phí xây dựng hợp lý: So với nhà cao tầng, chi phí xây nhà cấp 4 100m2 hay các diện tích nhỏ hơn thường thấp hơn đáng kể do kết cấu móng đơn giản hơn và không tốn nhiều chi phí cho cầu thang, kết cấu chịu lực phức tạp.
-
Thời gian thi công nhanh chóng: Với kết cấu không quá phức tạp, việc thi công và hoàn thiện một ngôi nhà cấp 4 thường diễn ra nhanh hơn, giúp gia chủ sớm ổn định cuộc sống.
-
Không gian sống gắn kết gia đình: Toàn bộ sinh hoạt của gia đình diễn ra trên một mặt sàn, tạo nên sự gần gũi, ấm cúng và thuận tiện cho việc chăm sóc người lớn tuổi và trẻ nhỏ.
-
Kiến trúc linh hoạt, dễ kết hợp sân vườn: Nhà cấp 4 rất lý tưởng để kết hợp với không gian sân vườn, tiểu cảnh, tạo nên một môi trường sống trong lành, chan hòa với thiên nhiên.
Xây nhà cấp 4 trọn gói hết bao nhiêu tiền? (Phân tích chi tiết)
Đây là câu hỏi quan trọng nhất của mọi gia chủ. Chi phí xây nhà cấp 4 trọn gói phụ thuộc vào nhiều yếu tố: diện tích, vị trí, phong cách kiến trúc và đặc biệt là gói vật tư bạn lựa chọn.
Cách tính chi phí phổ biến nhất hiện nay là: Tổng Chi Phí = Đơn Giá/m² x Tổng Diện Tích Xây Dựng.
Ví dụ, để tính sơ bộ chi phí xây nhà cấp 4 100m2:
-
Phần móng: 100m2 x 30% = 30m2
-
Phần sàn (diện tích sử dụng): 100m2 x 100% = 100m2
-
Phần mái ngói: 100m2 x 70% = 70m2
-
Tổng diện tích tính phí: 30 + 100 + 70 = 200m2
Dưới đây là các phân khúc chi phí phổ biến để bạn tham khảo:
Gói tiết kiệm (Giá rẻ dưới 300 triệu)
Với ngân sách này, bạn hoàn toàn có thể sở hữu một ngôi nhà cấp 4 nhỏ xinh, đầy đủ công năng cơ bản, thường có diện tích từ 50-70m2.
-
Đặc điểm:
-
Thiết kế đơn giản, thường là mái tôn hoặc mái bằng.
-
Sử dụng vật liệu hoàn thiện ở mức phổ thông, tập trung vào độ bền và tính kinh tế.
-
Thường có 2 phòng ngủ, 1 WC, phòng khách và bếp.
-
-
Giải pháp: Để có thể xây nhà cấp 4 giá rẻ 300 triệu, bạn cần tối giản các chi tiết trang trí không cần thiết và lựa chọn các vật liệu nội địa có chất lượng đảm bảo.
Gói cơ bản (Từ 300 - 500 triệu đồng)
Đây là phân khúc phổ biến nhất, cho phép bạn có nhiều lựa chọn hơn về diện tích (70-100m2) và phong cách kiến trúc.
-
Đặc điểm:
-
Có thể lựa chọn các kiểu mái phức tạp hơn như nhà cấp 4 mái thái hoặc nhà cấp 4 mái nhật.
-
Sử dụng vật liệu hoàn thiện ở mức trung bình - khá, đảm bảo cả về thẩm mỹ và độ bền.
-
Có thể bố trí nhà cấp 4 3 phòng ngủ, 2 WC và các không gian chức năng rộng rãi hơn.
-
Gói tiện nghi (trên 500 triệu đồng)
Với ngân sách này, bạn có thể xây dựng một ngôi nhà cấp 4 rộng rãi (trên 100m2) với thiết kế độc đáo và vật liệu cao cấp.
-
Đặc điểm:
-
Kiến trúc đa dạng, có thể kết hợp nhà cấp 4 gác lửng để tăng diện tích sử dụng.
-
Sử dụng vật liệu hoàn thiện cao cấp, các thiết bị thông minh.
-
Không gian sân vườn được đầu tư bài bản, tạo nên một khu nghỉ dưỡng tại gia.
-
Các yếu tố chính ảnh hưởng đến đơn giá xây dựng
-
Kết cấu móng: Nền đất yếu đòi hỏi phải gia cố móng băng hoặc móng cọc, chi phí sẽ cao hơn móng đơn trên nền đất tốt.
-
Vật liệu mái: Mái tôn có chi phí thấp nhất, tiếp đến là mái bằng bê tông cốt thép, và chi phí cao nhất là các hệ mái ngói (mái Thái, mái Nhật) do kết cấu vì kèo phức tạp hơn.
-
Vật liệu hoàn thiện: Sự chênh lệch giá giữa gạch lát, sơn nước, thiết bị vệ sinh... ở phân khúc phổ thông và cao cấp là rất lớn, ảnh hưởng trực tiếp đến tổng chi phí.
Tổng hợp các phong cách nhà cấp 4 được ưa chuộng nhất
Dịch vụ xây nhà cấp 4 trọn gói có thể hiện thực hóa mọi ý tưởng của bạn. Dưới đây là những phong cách đang dẫn đầu xu hướng.
Mẫu nhà cấp 4 mái Thái: Vẻ đẹp không bao giờ lỗi mốt
-
Đặc điểm: Hệ mái có độ dốc lớn, xếp chồng lên nhau tạo thành hình chữ A, giúp thoát nước mưa nhanh và chống nóng hiệu quả. Kiến trúc thường đối xứng, toát lên vẻ thanh thoát, cao ráo.
-
Ưu điểm: Phù hợp với khí hậu Việt Nam, kiến trúc bền vững với thời gian.
-
Phù hợp với: Những gia đình yêu thích vẻ đẹp truyền thống, trang nhã.



Mẫu nhà cấp 4 mái Thái 3 phòng ngủ với sân vườn rộng rãi
Nhà cấp 4 mái Nhật: Sang trọng và tinh tế
-
Đặc điểm: Hệ mái có độ dốc nhẹ, được mở rộng ra bốn phía, tạo cảm giác bề thế và cân bằng. Phong cách này là sự kết hợp hài hòa giữa nét đẹp Á Đông và sự tối giản của kiến trúc hiện đại.
-
Ưu điểm: Mang lại vẻ đẹp sang trọng, mới lạ, tối ưu không gian.
-
Phù hợp với: Những gia chủ có gu thẩm mỹ tinh tế, yêu thích sự tối giản nhưng vẫn đẳng cấp.



Mẫu nhà cấp 4 mái Nhật hiện đại với tông màu trắng xám
Tham khảo thêm: 30+ Mẫu nhà cấp 4 mái Nhật đẹp, hiện đại
Nhà cấp 4 hiện đại: Tối giản và phóng khoáng
-
Đặc điểm: Thường sử dụng mái bằng, các đường nét kiến trúc vuông vức, khỏe khoắn. Ưu tiên sử dụng các mảng kính lớn để kết nối không gian trong và ngoài nhà.
-
Ưu điểm: Chi phí thi công mái bằng thường rẻ hơn mái ngói, dễ dàng cải tạo, nâng tầng sau này.
-
Phù hợp với: Các cặp vợ chồng trẻ, yêu thích lối sống năng động, hiện đại.



Tham khảo thêm: 100+ Mẫu nhà cấp 4 hiện đại đẹp
Nhà cấp 4 gác lửng: Giải pháp tối ưu diện tích
-
Đặc điểm: Thiết kế thêm một tầng lửng bên trong không gian nhà, giúp tăng diện tích sử dụng mà không cần thay đổi chiều cao tổng thể của công trình quá nhiều.
-
Ưu điểm: Tận dụng tối đa chiều cao thông thủy, tạo thêm không gian cho phòng thờ, phòng làm việc, hoặc phòng ngủ phụ.
-
Phù hợp với: Các gia đình có diện tích đất không quá lớn nhưng cần nhiều không gian chức năng. Dịch vụ xây nhà cấp 4 trọn gói sẽ giúp bạn tính toán kết cấu chịu lực cho gác lửng một cách an toàn nhất.



Không gian nội thất nhà cấp 4 gác lửng với cầu thang gỗ hiện đại
Tham khảo thêm: Mẫu nhà cấp 4 gác lửng đẹp, hiện đại
Kinh nghiệm chọn vật liệu để xây nhà cấp 4 vừa đẹp vừa bền
Việc lựa chọn vật liệu ảnh hưởng lớn đến chi phí và chất lượng lâu dài của ngôi nhà.
-
Phần thô:
-
Thép: Nên chọn các thương hiệu uy tín như Hòa Phát, Việt Nhật, Pomina để đảm bảo kết cấu vững chắc.
-
Xi măng: Các thương hiệu như Holcim, Hà Tiên 1 là lựa chọn tin cậy.
-
Gạch xây: Ưu tiên gạch tuynel đặc, nung đủ lửa để đảm bảo khả năng chịu lực và chống thấm.
-
-
Phần hoàn thiện:
-
Mái: Mái tôn lạnh giúp giảm nhiệt và tiết kiệm chi phí. Mái ngói tuy đắt hơn nhưng bền đẹp và sang trọng hơn.
-
Sơn: Nên đầu tư vào sơn ngoại thất có khả năng chống thấm, chống nóng tốt để bảo vệ ngôi nhà trước thời tiết khắc nghiệt.
-
Gạch lát nền: Chọn gạch granite hoặc porcelain có độ cứng cao, chống trầy xước tốt cho các khu vực đi lại nhiều.
-
Gợi ý cách bố trí mặt bằng công năng cho nhà cấp 4 (2-3-4 phòng ngủ)
Một mặt bằng công năng hợp lý sẽ quyết định sự tiện nghi trong sinh hoạt hàng ngày.
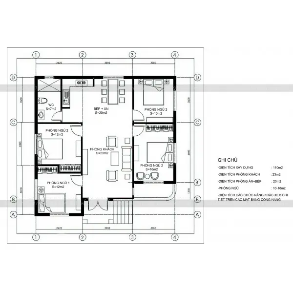
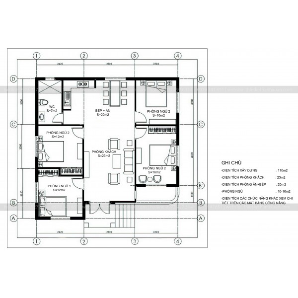
Mặt bằng nhà cấp 4 2-3 phòng ngủ (diện tích 70-100m2)
Đây là mô hình phổ biến nhất, phù hợp với gia đình 3-5 thành viên.
-
Gợi ý bố trí:
-
Không gian khách - bếp - ăn được thiết kế liên thông để tạo cảm giác rộng rãi.
-
Nhà cấp 4 3 phòng ngủ thường được bố trí về một phía của ngôi nhà để đảm bảo sự yên tĩnh và riêng tư.
-
Nên có ít nhất 2 nhà vệ sinh, 1 vệ sinh chung và 1 vệ sinh trong phòng ngủ master.
-


Bản vẽ mặt bằng công năng nhà cấp 4 3 phòng ngủ 100m2
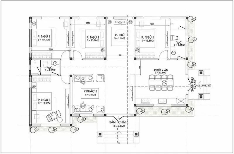
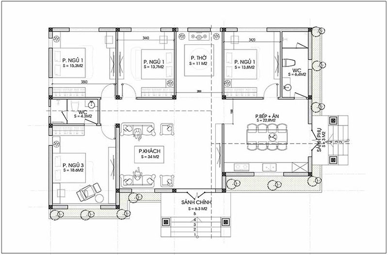
Mặt bằng nhà cấp 4 4 phòng ngủ (diện tích >120m2)
Phù hợp với các gia đình đa thế hệ, cần nhiều không gian riêng tư.
-
Gợi ý bố trí:
-
Có thể thiết kế theo dạng chữ L hoặc chữ U để tối ưu hóa ánh sáng và thông gió tự nhiên cho các phòng.
-
Phòng ngủ cho người lớn tuổi nên được đặt ở vị trí tầng trệt, gần phòng khách và dễ dàng di chuyển.
-
Phòng thờ nên được đặt ở vị trí trang trọng, yên tĩnh.
-


Xây Dựng Kim Anh: Đồng hành cùng bạn kiến tạo tổ ấm cấp 4 hoàn hảo
Hành trình xây nhà cấp 4 trọn gói sẽ trở nên đơn giản và an tâm hơn rất nhiều khi có một đối tác chuyên nghiệp đồng hành. Tại Xây Dựng Kim Anh, chúng tôi cung cấp giải pháp toàn diện:
-
Tư vấn thiết kế miễn phí: Đội ngũ kiến trúc sư của chúng tôi sẽ lắng nghe ý tưởng và hiện thực hóa ngôi nhà mơ ước của bạn với những mẫu thiết kế tối ưu nhất.
-
Dự toán chi phí chi tiết, minh bạch: Chúng tôi cung cấp bảng báo giá rõ ràng, không ẩn phí, giúp bạn dễ dàng kiểm soát ngân sách.
-
Thi công chuyên nghiệp, chất lượng: Với đội ngũ kỹ sư giám sát và thợ lành nghề, chúng tôi cam kết thi công đúng kỹ thuật, đúng tiến độ và sử dụng đúng vật tư cam kết.
-
Bảo hành dài hạn: Chính sách bảo hành tận tâm mang lại sự an tâm tuyệt đối cho bạn sau khi nhận nhà.
Lựa chọn dịch vụ xây nhà trọn gói của Xây Dựng Kim Anh, bạn đang chọn sự an tâm, chất lượng và một tổ ấm bền vững với thời gian.
Đừng để những băn khoăn về chi phí hay thiết kế cản trở ước mơ của bạn. Hãy liên hệ ngay với Xây Dựng Kim Anh để nhận tư vấn miễn phí và bắt đầu hành trình kiến tạo ngôi nhà cấp 4 lý tưởng của riêng mình!
-
Công Ty TNHH Tư Vấn Thiết Kế Xây Dựng Kim Anh
-
Địa chỉ: 98/5 Nguyễn Thị Đẹt, Ấp 25, Xã Đông Thạnh, TP Hồ Chí Minh
-
Hotline/Zalo: 0974 776 305 – 0966 289 559 – 0987 244 305
-
Email: xaydungkimanh@gmail.com
-
MST: 0314264130