Diện mạo mới cho tổ ấm: Dự án sửa chữa, nâng cấp nhà 1 trệt 1 lầu tại Tân Phú Trung, Củ Chi
Cập nhật ngày: 23/04/2025 bởi Nguyễn Duy Tuấn
Tại các khu vực đang phát triển như Củ Chi, nhu cầu cải tạo, nâng cấp những ngôi nhà đã xây dựng từ lâu để đáp ứng tốt hơn công năng sử dụng và thẩm mỹ hiện đại ngày càng trở nên phổ biến. Xây Dựng Kim Anh, với kinh nghiệm dày dặn trong lĩnh vực sửa chữa nhà tại TP.HCM và các khu vực lân cận, rất hân hạnh được một gia đình tại xã Tân Phú Trung, huyện Củ Chi tin tưởng giao phó trọng trách "thay áo mới" cho tổ ấm của mình.
Dự án này bao gồm việc sửa chữa và nâng cấp nhà toàn diện, biến đổi không gian sống thành một ngôi nhà 1 trệt 1 lầu khang trang, tiện nghi hơn. Hãy cùng chúng tôi khám phá hành trình cải tạo chi tiết qua những hình ảnh thực tế tại công trình.
Thông tin dự án và phạm vi cải tạo, nâng cấp
- Dự án: Sửa chữa, nâng cấp nhà thành 1 trệt 1 lầu.
- Chủ đầu tư: Ông Nguyễn Đình Chính
- Địa điểm: Xã Tân Phú Trung, Huyện Củ Chi, TP.HCM
- Đơn vị thiết kế & thi công: Công ty TNHH Tư Vấn Thiết Kế Xây Dựng Kim Anh
- Hiện trạng ban đầu:
- Ngôi nhà có thể là nhà cấp 4 hoặc nhà 1 trệt đã cũ, có dấu hiệu xuống cấp về kết cấu hoặc kiến trúc lỗi thời.
- Không gian chưa đáp ứng đủ nhu cầu sinh hoạt ngày càng tăng của gia đình.
- Hệ thống điện, nước, chống thấm có thể đã cũ kỹ, cần được kiểm tra và thay thế.
- Mục tiêu của chủ đầu tư:
- Cải tạo, làm mới toàn bộ ngôi nhà.
- Mở rộng không gian sử dụng bằng cách xây dựng/cải tạo thành quy mô 1 trệt 1 lầu.
- Nâng cấp hệ thống kỹ thuật (điện, nước) và hoàn thiện nội thất, ngoại thất.
- Mong muốn một ngôi nhà mới khang trang, hiện đại và bền vững hơn.
- Phạm vi công việc thực hiện bởi Xây Dựng Kim Anh:
- Khảo sát & Tư vấn: Kiểm tra kỹ lưỡng hiện trạng kết cấu, móng, tường... Tư vấn phương án cải tạo, nâng cấp phù hợp và tiết kiệm chi phí.
- Thiết kế: Lập bản vẽ thiết kế kiến trúc, kết cấu (nếu cần thay đổi hoặc xây mới phần lầu), bố trí công năng cho nhà 1 trệt 1 lầu.
- Thi công phần thô:
- Phá dỡ các phần cũ, không phù hợp.
- Gia cố móng, cột.
- Thi công xây mới hoặc cải tạo phần khung, tường cho tầng trệt và lầu 1.
- Thi công mái tôn mới.
- Thi công cầu thang.
- Thi công phần hoàn thiện:
- Tô trát tường trong và ngoài nhà.
- Thi công chống thấm cho các khu vực ẩm ướt (mái, WC, ban công).
- Ốp lát gạch nền, gạch tường.
- Đóng trần (thạch cao, nhựa...).
- Sơn nước nội thất và ngoại thất.
- Lắp đặt hệ thống điện, nước, đèn chiếu sáng.
- Lắp đặt cửa, lan can, thiết bị vệ sinh.
- Quản lý & Giám sát: Đảm bảo thi công đúng kỹ thuật, chất lượng vật tư và an toàn lao động.
Với gói dịch vụ sửa nhà trọn gói, Xây Dựng Kim Anh đảm nhận toàn bộ các khâu từ khảo sát, thiết kế đến thi công hoàn thiện, mang lại sự tiện lợi và an tâm cho gia chủ.
Hình ảnh thực tế quá trình thi công tại Củ Chi
Dưới đây là những hình ảnh ghi lại các công đoạn khác nhau trong dự án sửa chữa, nâng cấp nhà tại xã Tân Phú Trung, Củ Chi:

Hình ảnh phối cảnh dự án sửa chữa cải tạo tại Củ Chi
Giai đoạn hoàn thiện

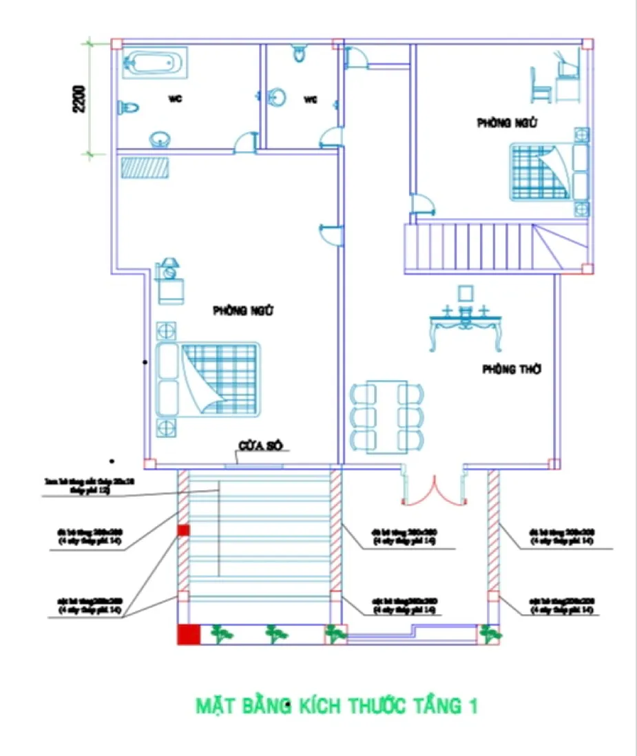
Hình ảnh thiết kế kiến trúc dự án sửa chữa cải tạo tại Củ Chi

Hình ảnh phòng khách sau hoàn thiện dự án sửa chữa cải tạo tại Củ Chi

Hình ảnh phòng ngủ sau hoàn thiện dự án sửa chữa cải tạo tại Củ Chi

Hình ảnh tầng 1 sau hoàn thiện dự án sửa chữa cải tạo tại Củ Chi

Hình ảnh phòng ngủ sau hoàn thiện dự án sửa chữa cải tạo tại Củ Chi
Xây Dựng Kim Anh – Năng lực sửa nhà tại Củ Chi
Xây Dựng Kim Anh tự hào là nhà thầu uy tín, chuyên nghiệp trong lĩnh vực thiết kế, xây dựng nhà phố và đặc biệt là sửa chữa, cải tạo nhà ở tại TP.HCM, bao gồm cả khu vực Củ Chi. Chúng tôi hiểu rõ điều kiện xây dựng và nhu cầu của người dân địa phương.
Với đội ngũ kiến trúc sư, kỹ sư giàu kinh nghiệm và đội thợ thi công lành nghề, chúng tôi cam kết mang đến cho quý khách hàng tại Củ Chi những công trình sửa chữa, nâng cấp chất lượng tốt nhất, đảm bảo thẩm mỹ, công năng sử dụng và sự bền vững theo thời gian, với chi phí hợp lý.


Tham khảo báo giá chi phí sửa nhà trọn gói tại Củ Chi
Chi phí sửa chữa và nâng cấp nhà thành 1 trệt 1 lầu tại Củ Chi phụ thuộc vào nhiều yếu tố như: diện tích sửa chữa, hiện trạng công trình cũ, phạm vi công việc (có cần gia cố kết cấu hay không, mức độ hoàn thiện nội thất...), loại vật tư sử dụng.
Để giúp quý khách hàng tại Củ Chi có cái nhìn tổng quan về chi phí, Xây Dựng Kim Anh xin cung cấp bảng đơn giá tham khảo cho một số hạng mục thi công:
Lưu ý quan trọng:
- Đơn giá tham khảo tại thời điểm tháng 04/2025, áp dụng cho khu vực Củ Chi, TP.HCM.
- Đơn giá thực tế sẽ được báo chi tiết sau khi khảo sát trực tiếp công trình và thống nhất vật tư.
- Đơn giá chưa bao gồm thuế VAT.
Bảng đơn giá sửa chữa nhà tham khảo tại Củ Chi:
| STT | Hạng mục công việc | Đơn vị tính | Đơn giá tham khảo (VNĐ) | Ghi chú |
|---|---|---|---|---|
| 1 | Phá dỡ tường, sàn, cấu kiện cũ | m² / Gói | 150.000 - 400.000 | Bao gồm vận chuyển xà bần |
| 2 | Gia cố móng, cột (nếu cần) | Báo giá Cụ thể | Khảo sát & báo giá trực tiếp | Theo hiện trạng & thiết kế |
| 3 | Thi công phần thô lầu 1 (Nếu xây mới) | m² sàn | ~ 3.000.000 - 3.800.000 | Bao gồm khung BTCT, xây tô |
| 4 | Thi công mái (Tôn, Ngói...) | m² mái | 350.000 - 700.000 | Tùy loại vật liệu |
| 5 | Xây tường ngăn, tường bao | m² | 280.000 - 350.000 | Tường 110mm, bao gồm VT & NC |
| 6 | Tô trát tường | m² | 120.000 - 220.000 | Bao gồm VT & NC |
| 7 | Chống thấm (WC, mái, ban công) | m² | 150.000 - 300.000 | Tùy vật liệu |
| 8 | Ốp lát gạch (nhân công) | m² | 140.000 - 250.000 | Chưa bao gồm gạch & VT phụ |
| 9 | Đóng trần thạch cao / Nhựa | m² | 150.000 - 220.000 | Tùy loại vật liệu |
| 10 | Sơn nước hoàn thiện (2 lớp) | m² | 45.000 - 80.000 | Bao gồm VT (sơn phổ thông) & NC |
| 11 | Lắp đặt hệ thống điện / nước cơ bản | Báo giá Cụ thể | Khảo sát & báo giá trực tiếp | Theo số lượng thiết bị |
| 12 | Lắp đặt cửa đi, cửa sổ (Nhân công) | Bộ / m² | Báo giá Cụ thể | Theo loại cửa |
Tham khảo bảng báo giá chi tiết và đầy đủ hơn tại đây: Bảng Báo Giá Sửa Chữa Nhà Mới Nhất
Quy trình sửa chữa, nâng cấp nhà chuyên nghiệp
Để đảm bảo mọi công trình sửa chữa, nâng cấp tại Củ Chi đều đạt chất lượng cao và làm hài lòng khách hàng, Xây Dựng Kim Anh tuân thủ quy trình làm việc chuyên nghiệp:
- Tiếp nhận thông tin & Khảo sát miễn phí: Lắng nghe nhu cầu, đến tận nơi khảo sát hiện trạng công trình.
- Tư vấn giải pháp & Thiết kế sơ bộ: Đề xuất phương án sửa chữa, nâng cấp phù hợp nhất với hiện trạng và ngân sách.
- Lập dự toán & Báo giá chi tiết: Gửi báo giá rõ ràng, minh bạch từng hạng mục công việc và vật tư.
- Thương thảo & Ký hợp đồng: Thống nhất các điều khoản và ký kết hợp đồng thi công.
- Chuẩn bị thi công: Lên kế hoạch thi công chi tiết, chuẩn bị vật tư, nhân lực.
- Tổ chức thi công & Giám sát chất lượng: Thi công đúng kỹ thuật, đảm bảo an toàn. Kỹ sư giám sát chặt chẽ.
- Nghiệm thu & Bàn giao: Nghiệm thu kỹ lưỡng cùng chủ đầu tư trước khi bàn giao công trình.
- Bảo hành công trình: Thực hiện chính sách bảo hành uy tín, lâu dài.
Tìm hiểu thêm về dịch vụ sửa nhà tổng thể của chúng tôi: Dịch Vụ Sửa Nhà Trọn Gói Uy Tín
Liên hệ tư vấn sửa nhà tại Củ Chi
Quý khách hàng tại xã Tân Phú Trung và các khu vực khác tại huyện Củ Chi có nhu cầu sửa chữa, cải tạo, nâng cấp nhà ở? Hãy liên hệ ngay với Công ty Xây Dựng Kim Anh để nhận được sự tư vấn tận tình và báo giá miễn phí.
Chúng tôi cam kết mang đến dịch vụ chuyên nghiệp, chất lượng và giá cả hợp lý nhất!
CÔNG TY TNHH TƯ VẤN THIẾT KẾ XÂY DỰNG KIM ANH
- VPGD: C40 - KDC Hiệp Thành - Nguyễn Thị Búp, P. Hiệp Thành, Quận 12, TP.HCM
- MST: 0314264130
- Website: www.xaydungkimanh.com
- Email: xaydungkimanh@gmail.com
- Hotline/Zalo tư vấn: 0974.776.305 – 0966.289.559 – 0987.244.305
Gọi ngay Hotline để được tư vấn và khảo sát miễn phí tại Củ Chi!